Diese attraktive Bürofläche im ersten OG dieses Gewerbegebäudes überzeugt durch ihre helle, freundliche Atmosphäre und ihre hervorragende Verkehrsanbindung.
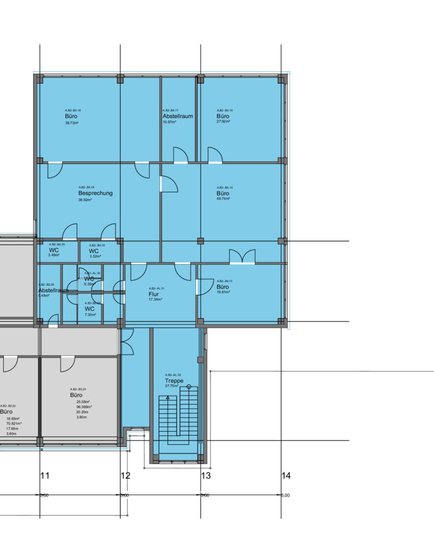
Über ein gemeinschaftlich genutztes Treppenhaus kommen Sie direkt zur Bürofläche. Auf insgesamt 190.3 m² stehen Ihnen sechs aneinander verbundene Büroräume zur Verfügung, die sowohl als Einzel- oder Team-Büros als auch für Besprechungen oder Kundenempfang genutzt werden können. In der Fläche stehen Ihnen ebenfalls zwei Sanitäranlagen zur Verfügung. In der Fläche selbst sorgen die großen Fenster für viel Tageslicht und schaffen ein angenehmes, produktives Arbeitsumfeld.
Dank der direkten Anbindung an die Autobahn A5 sowie die B37/ B535 ist das Büro für Autofahrer optimal erreichbar. Aber auch die Anbindung des öffentlichen Verkehrsnetzes ist für Mitarbeiter oder Kunden optimal. Zudem stehen am Objekt Parkmöglichkeiten zur Verfügung, die den Arbeitsalltag zusätzlich erleichtern.
Auf Wunsch hin können Sie auf dem Gelände außerdem zusätzlich eine kleine Hallenfläche anmieten.
Ihr Vorteil mit Zapf Projekte:
Wir unterstützen Sie bei der individuellen Anpassung Ihrer Mietfläche – von der Flächenanalyse bis zur Umsetzung.
Baurecht, Brandschutz und technische Abstimmungen übernehmen wir für Sie.
So entsteht genau die Fläche, die zu Ihrem Unternehmen passt.
Und falls diese Immobilie nicht exakt zu Ihrem Bedarf passt: Zapf Projekte betreut zahlreiche weitere Gewerbeflächen in der Region. Wir finden gemeinsam die passende Lösung.
Jetzt Besichtigungstermin vereinbaren und Nutzungsmöglichkeiten besprechen - wir gestalten Ihre Wunschfläche!
Repräsentative Bürofläche mit bester Anbindung – Ihr neuer Standort in Heidelberg!
Repräsentative Bürofläche mit bester Anbindung – Ihr neuer Standort in Heidelberg!
Objektbeschreibung:
Eckdaten der Immobilie
-Top Lage mit guter Erreichbarkeit
-Repräsentative Fläche
-Sanitäranlagen
-Helle, freundliche Räume
-Stellplätze am Objekt
-Stromanschlüsse
Lage
Sehr gute Verkehrsanbindung mit direktem Anschluss an die Bundesstraße B37 zur Bundesautobahn A5, A656 und dem Autobahnkreuz Heidelberg. S-Bahnhof in 100 m Entfernung.
PKW / LKW Anschluss:
- Anschluss an B37 über Kreisverkehr (600 m – 2 min.)
- Hauptbahnhof Heidelberg in kürzester Zeit erreichbar (3 km - 6 min)
- Fußweg bis nächste Straßenbahnhaltestelle ca. 1,4 Km
- Bis Mannheim Hbf. 20 min über A656 (17 Km)
- Bis Frankfurt am Main Flughafen über A5 50 min (80 Km)
ÖPNV Anschluss:
- S-Bf. Pfaffengrund/Wieblingen mit den Linie S1, S2, S3 in 4 min (100 m) erreichbar
- 2 min Fahrtzeit ohne Umsteigen zum Heidelberg Hbf., 11-14 min Fahrtzeit zum Hbf. Mannheim tagsüber im 10min Takt
Nahversorgung:
- Sämtliche Nahversorger und Geschäfte des täglichen Bedarfs, sowie Schulen, Ärzte und Freizeiteinrichtungen im direkten Umkreis innerhalb 10 min mit dem Auto erreichbar.
